Wohnungen Gera und Jena | Wohnen bei der WBG Aufbau Gera eG - Wohnung 2371 in Gera, Seydelstraße 6
ORT/Stadtteil
Stadtteil auswählen



Räume
Warmmiete bis
Zugang
Gewünschte Ausstattung

Objektnr.: 052.0018.31

mit Einbauküche

Seydelstraße 6, Gera

Zurück Zur Ergebnisliste
75,02 m²Wohnfläche
3Zimmer
3.Etage
Kaltmiete: 421,35 €
Nebenkosten: 240,06 €
davon Heizkosten: 142,54 €

661,41 €

inkl. Nebenkosten

Einbauküche Fenster Küche Bad mit Wanne Balkon Stellplatz / Garage

Objektbeschreibung


Das Objekt befindet sich in sehr ruhiger Lage und wurde im Jahr 2008 saniert. Balkonseitig verfügen alle Wohnunge über einen tollen Blick ins Grüne. Die nächste Straßenbahnhaltestelle erreichen Sie in wenigen Minuten zu Fuß. Per Bahn gelangen Sie in ca. 20 Minuten ins Stadtzentrum. In der Nähe befinden sich:

  • Einkaufsmöglichkeiten
  • Schule
  • Kindertagesstätte
  • Arztpraxis
Parkplätze sind ausreichend vorhanden.

Ausstattung


  • Wohnung ist vollsaniert mit Badewanne,WC und WB
  • Alle Räume Raufasertapte weißer Anstrich
  • PVC-Belag alle Räume in Laminatoptik
  • E-leitung nach DIN
  • neue IT
  • Abstellraum in hinterem Flurbereich
Einbauküche vorhanden  ( zusätzlich 10€ zur NG)

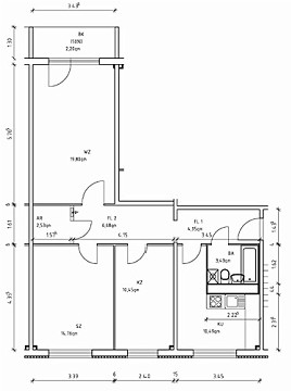
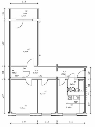
Grundriss


Grundriss - mit Einbauküche, Seydelstraße 6, Gera Grundriss mit Einbauküche, Seydelstraße 6, Gera